公司门户网站切换新版本,试运行期间给各位使用带来不便,敬请谅解。
如您对网站有任何疑问或建议,请致电公司信息室。
招标信息
Information
来源: 发布日期:2019-11-14 浏览次数:2572
供应商:
都江堰乐鱼全网光电材料有限责任公司就传送带机构采购项目组织询价采购,报价函截止回函时间:2019年11月24日,欢迎贵司前来报价。
一、企业基本情况
企业全称(填写并盖章)  | 详细地址  | 邮政编码  | 法人代表  | ||||
业务联系人  | 联系电话  | ||||||
取得质量认证情况  | |||||||
主要业绩(着重照明及光学领域)  | |||||||
二、产品主要技术要求
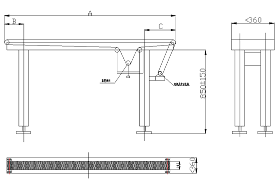
(一)传输机构结构草图见(九),已标明的按尺寸加工,总长度尺寸及脚支架与传输设备尽头尺寸见报价明细。已标注有的尺寸按标准设计,其余未尺寸由供应商设计。
(二)网带宽度200mm,传送带机构总宽度控制在360mm以内。
(三)网带标高850mm±150,脚支架采用螺杆调节高度。
(四)电机加变速箱传动,网带传输速度最小区间1-4m/min,单条传输机构独立控制。
(五)传输机构均包含张紧机构,防止打滑。
(六)网带材料选用细密型304不锈钢网带(螺距:约7mm,节距:约12.5mm,丝径:φ1.2mm,串轴:φ1.5mm)。
(七)网带两侧10mm范围增加档条,防止产品传输过程跑偏滑出轨道。
(八)主体结构供应商自主选材料,确保牢靠。
(九)结构简图如下:

三、报价
序号  | 物资名称  | 长度及脚支架位尺寸  | 单位  | 数量(套)  | 单价 (元/套)  | 说明  | 备注  | 
1  | 传送带1  | A:1300mm B:200mm C:300mm  | 套  | 1  | 1、报价时请附详细设计图,使用设施设备型号、规格明细等。 2、产品质量符合国家及行业标准。 3、报价均含13%增值税专用发票。  | ||
2  | 传送带2  | A:3000mm B:600mm C:600mm  | 套  | 1  | |||
3  | 传送带3  | A:5300mm B:1000mm C:1000mm  | 套  | 1  | |||
4  | 传送带4  | A:7000mm B:1000mm C:1000mm  | 套  | 1  | 供应商综合判断,中段是否增加脚支架,以增强设备稳定性及刚性  | ||
5  | 传送带5  | A:8000mm B:1000mm C:1000mm  | 套  | 1  | |||
6  | 传送带6  | A:9000mm B:1000mm C:1000mm  | 套  | 1  | 
三、报价关键要素
(一)交货期限:合同签订后___日内交货;
(二)是否含运费:是£,含送货到厂运费;
否£,采购方自提。
(三)付款条件:,
。
(四)报价有效期: 。
(五)违约承诺(请选择):A.同意;B.不同意
1、根据合同按时发货到需方公司,因货物延期而影响生产的,承担相应责任。
2.发现货物质量问题,及时更换。造成经济损失的,按实际损失金额赔付。
四、其他
(一)询价文件投递:请将此表填好,会同图纸、明细清单密封,附一份营业执照复印件盖鲜章。外包装上要注明: 传送带机构采购项目报价资料、报价单位名称(盖公章)和贴有“开标时才能启封”的密封条。于2019年11月24日前寄回到(或送达):都江堰乐鱼全网光电责任有限责任公司审计部,收件人:邓建国,电话:028-87117177,13183886588。公司地址:都江堰市蒲阳镇经济开发区光泰路10号。
(二)主要业绩可根据实际情况填写,企业全称、报价单位、和骑缝三个地方需加盖公章(或合同章)。
(三)业务情况咨询人:袁平,联系电话:13688329741。
报价单位(盖章):
年 月 日
上一篇
下一篇